Royal Immobili - Appartamento | via Antonio Bronzino, Milano
Nascondi dettagli

Appartamento | via Antonio Bronzino, Milano

via Antonio Bronzino Milano

268.000,00
1 camera
1 bagno
48 M2

Appartamento | via Antonio Bronzino, Milano

via Antonio Bronzino Milano

268.000,00
1 camera
1 bagno
48 M2

Descrizione

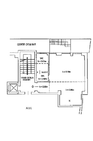
Royal Immobili & Investimenti propone questo appartamento RISTRUTTURATO E MAI ABITATO in uno stabile signorile di nuova realizzazione. La soluzione è stata efficientata dal punto di vista energetico fino a raggiungere la CLASSE A. L'immobile con affaccio interno e tranquillo risulta essere un piano terra ed è attualmente stato concepito come open space per necessità legate alla proprietà ma può essere riorganizzato, con grande facilità progettuale, realizzando un bilocale. SONO INCLUSI NEL PREZZO LA CUCINA CON RELATIVI ELETTRODOMESTICI, IL TAVOLO E LE SEDIE. IMPIANTO DI ARIA CONDIZIONATA. IMPOSTA DI REGISTRO. Il contenuto del presente annuncio è indicativo e non costituisce pertanto elemento contrattuale.

Dettagli

Tipologia contratto
Vendita
Tipologia proprietà
Appartamento
Anno di costruzione
1960
Superficie
48 m2
Camere
1
Bagni
1
Classe energetica e I.P.E.
A1, 175.00