Royal Immobili - Appartamento | via Canaletto, Milano
Nascondi dettagli

Appartamento | via Canaletto, Milano

via Canaletto Milano

450.000,00
1 camera
1 bagno
80 M2

Appartamento | via Canaletto, Milano

via Canaletto Milano

450.000,00
1 camera
1 bagno
80 M2

Descrizione

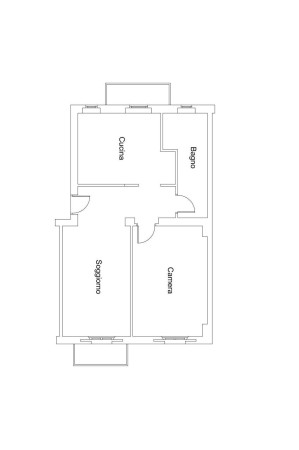
Royal Immobili & Investimenti propone in vendita un esclusivo appartamento in buone condizioni di manutenzione, inserito in uno stabile d’epoca dotato di servizio di portineria e ascensore. Il condominio è valorizzato dalla presenza di un curato giardino condominiale, che contribuisce a creare un contesto riservato e piacevole. L’immobile, libero subito, si sviluppa con una razionale distribuzione degli spazi ed è composto da ingresso, luminosa zona giorno con accesso al balcone esposto a Sud, cucina abitabile anch’essa servita da balcone, ampia camera da letto e bagno finestrato. Completano la proprietà una cantina e un solaio di pertinenza, ideali come spazi accessori per deposito. . La zona di Viale Argonne rappresenta uno dei quartieri residenziali più apprezzati della città, grazie alla sua combinazione di tranquillità urbana e ottimi collegamenti con il resto di Milano. La fermata M4 Argonne/Susa della nuova linea metropolitana blu è raggiungibile a piedi, consentendo spostamenti rapidi verso il centro città, la Stazione Centrale e l’aeroporto di Linate in pochi minuti. Numerose linee di autobus e tram servono la zona, garantendo un’elevata connettività con le principali aree cittadine. . Il contenuto del presente annuncio è indicativo e non costituisce pertanto elemento contrattuale.

Dettagli

Tipologia contratto
Vendita
Tipologia proprietà
Appartamento
Anno di costruzione
1920
Superficie
80 m2
Camere
1
Bagni
1
Piano
2 di 4
Classe energetica e I.P.E.
F, 175.00