Royal Immobili - Appartamento | via del Vecchio Politecnico, Milano
Nascondi dettagli

Appartamento | via del Vecchio Politecnico, Milano

via del Vecchio Politecnico Milano

748.000,00
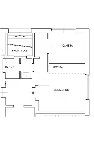
1 camera
1 bagno
65 M2

Appartamento | via del Vecchio Politecnico, Milano

via del Vecchio Politecnico Milano

748.000,00
1 camera
1 bagno
65 M2

Descrizione

Royal Immobili & Investimenti propone in vendita un’esclusiva e introvabile soluzione, unica per dimensioni e posizione. L’immobile, completamente ristrutturato e arredato con gusto contemporaneo, è situato in uno stabile d’epoca dei primi del ’900, in ottime condizioni generali e dal fascino senza tempo. L’abitazione si compone di una luminosa zona giorno con angolo cottura, una camera da letto matrimoniale e un bagno finestrato elegantemente rifinito. Gli interni si distinguono per l’uso di materiali e arredi di alta qualità: parquet in rovere posato in tutti gli ambienti e grès porcellanato di prima scelta nel bagno. A completare il comfort della proprietà troviamo numerosi optional: - zanzariere, - impianto di aria condizionata canalizzata, - arredi su misura, - cucina ed elettrodomestici di marchi primari, - scrivania, libreria e TV a scomparsa nella camera da letto. Un immobile ideale per chi desidera vivere in un contesto elegante, pronto da abitare e curato in ogni dettaglio. Il contenuto del presente annuncio è indicativo e non costituisce pertanto elemento contrattuale.

Dettagli

Tipologia contratto
Vendita
Tipologia proprietà
Appartamento
Anno di costruzione
1920
Superficie
65 m2
Camere
1
Bagni
1
Piano
-- di 8
Classe energetica e I.P.E.
G, 175.00