Royal Immobili - Appartamento | via Francesco Redi, Milano
Nascondi dettagli

Appartamento | via Francesco Redi, Milano

via Francesco Redi Milano

575.000,00
2 camere
1 bagno
100 M2

Appartamento | via Francesco Redi, Milano

via Francesco Redi Milano

575.000,00
2 camere
1 bagno
100 M2

Descrizione

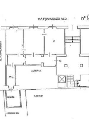
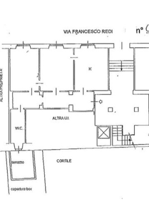
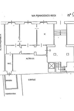
Royal Immobili & investimenti propone questo appartamento situato in uno stabile signorile anni '40, in ottimo stato, con servizio di portineria intera giornata. L'appartamento è in perfette condizioni di manutenzione ed è composto da un soggiorno con cucina a vista, da due generose camere matrimoniali, da una zona lavanderia e da un bagno finestrato. L'immobile è arricchito dalla presenza di un terrazzino. . Completa la soluzione una cantina di pertinenza. Il contenuto del presente annuncio è indicativo e non costituisce pertanto elemento contrattuale.

Dettagli

Tipologia contratto
Vendita
Tipologia proprietà
Appartamento
Anno di costruzione
1940
Superficie
100 m2
Camere
2
Bagni
1
Piano
-- di 5
Classe energetica e I.P.E.
E, 175.00