Royal Immobili - Appartamento | via Teodosio, Milano
Nascondi dettagli

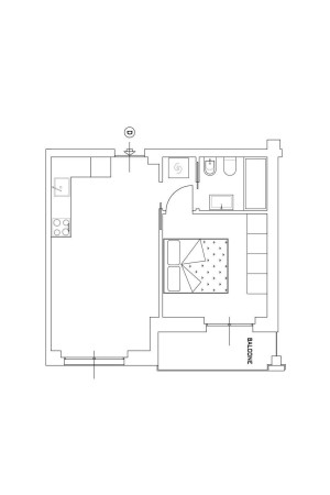
Appartamento | via Teodosio, Milano

via Teodosio Milano

328.000,00
1 camera
1 bagno
44 M2

Appartamento | via Teodosio, Milano

via Teodosio Milano

328.000,00
1 camera
1 bagno
44 M2

Descrizione

Royal immobili & investimenti propone in vendita, in stabile signorile anni '60 con ascensore e servizio di portineria, BILOCALE AL QUINTO PIANO dotato di balcone. L'immobile si compone da soggiorno con cucina a vista, camera da letto matrimoniale e servizio. L'appartamento è arricchito dalla presenza di un balcone. Le finiture, di pregio, vanno dal parquet di ROVERE al GRESS PORCELLANATO, di prima scelta, per il bagno. Tapparelle elettriche e predisposizione in tutti gli ambienti di aria condizionata. LA VENDITA E' SOGGETTA AD IMPOSTA DI REGISTRO (NO IVA). L'APPARTAMENTO E' IN CORSO DI COMPLETA RISTRUTTURAZIONE. Il contenuto del presente annuncio è indicativo e non costituisce pertanto elemento contrattuale. Alcune caratteristiche potranno essere modificate per motivi progettuali.

Dettagli

Tipologia contratto
Vendita
Tipologia proprietà
Appartamento
Anno di costruzione
1960
Superficie
44 m2
Camere
1
Bagni
1
Piano
5 di 7
Classe energetica e I.P.E.
C, 175.00